$749,900 Sale
Listed 2 days ago
119 24 Street
· 7
· 5
· 2
· 2394.99
Key Facts
Key facts for 119 24 Street
Property Type
House, 2 Storey
Parking
Double Garage Attached 2 garage, Double Garage Attached
MLS®
E4464103
Size
2394.99 sqft
Basement
Full,Finished, Fully Finished
Listed on
-
Lot size
-
Tax
-
Days on Website
-
Year Built
2025
Maintenance Fee
-
Description
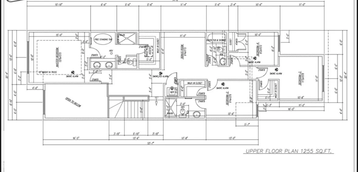
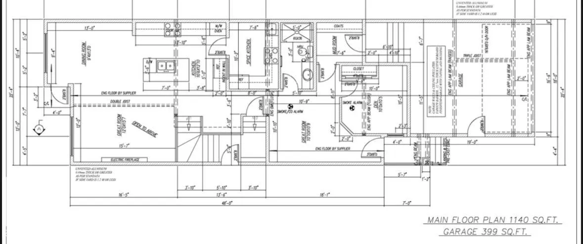
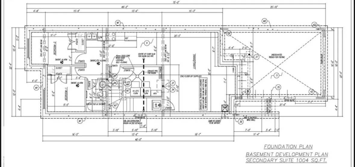
Beautiful Under-Construction Opportunity in Alces, Edmonton! Looking for your next dream home? This nearly 2400 sq. ft. pre-construction beauty offers the perfect balance of luxury, comfort, and functionality in one of South Edmonton’s fastest-growing communities —Alces!!Main Floor Highlights a Spac...ious den with a full bathroom — ideal for working from home or hosting guests,Modern open-to-below living area creating a bright and airy ambiance, Stylish main kitchen with upgraded finishes + a fully equipped spice kitchen for added convenience.Upper Floor Features Two primary bedrooms each with their own ensuite bathrooms,Two additional bedrooms + a common full bathroom, A cozy bonus room — perfect for family movie nights or a kids’ play areaNestled in a family-friendly neighbourhood, this home is designed with convenience in mind. And the best part — it also comes with a fully finished two-bedroom legal basement suite!
Similar Properties (No results)
Courtesy of: Sandy Brar, Nationwide Realty Corp